Opis techniczny:
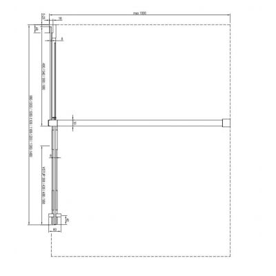
- szerokość szklanej ścianki stałej: 120 cm
- wysokość ścianki: 195 cm
- szerokość wejścia: do 100 cm (długość wspornika można dowolnie skrócić do oczekiwanej szerokości wejścia)
- wymiary montażowe: 1180-1200 x 1950 mm
- wejście: 488 mm
- waga: 54,3 kg
- wypełnienie z bezpiecznego szkła: 8 mm; Transparent
- kolor wykonania metalowych elementów: chrom błyszczący
Dwuczęściową kabinę prysznicową ROWI typu Walk-In tworzą profil mocujący oraz prysznicowa zabudowa ze stałą i ruchomą częścią. Część ruchoma porusza się za pomocą rolek w dolnej prowadnicy. Stabilność produktu zapewnia metalowy wspornik o długości 100cm, który można skrócić uzyskując w ten sposób wymaganą szerokość wejścia.
Lewy lub prawy wariant wejścia można uzyskać w trakcie montażu poprzez przesunięcie części stałej na lewą lub prawą stronę oraz obracając część przesuwną w pionie o 180°.
Zalecamy montaż w wyłożonym płytkami rogu łazienki bezpośrednio na podłodze z wbudowanym odpływem liniowym lub kratką odpływową. Maksymalna szerokość 1000mm zapewnia wystarczającą przestrzeń dla komfortowego prysznica, a przesuwając część ruchomą można zmniejszyć całkowitą szerokość prysznica o prawie połowę.
Pewność przy każdym otwarciu
Rolki z zabudowanymi łożyskami zapewniają stabilną i płynną pracę systemu otwierania. Dzięki trwałej konstrukcji nie ma ryzyka nieprzyjemnego zaskoczenia zacinaniem się drzwi a kabina będzie niezawodnie służyć przez wiele lat.
Nowocześnie lub klasycznie
Kabinę prysznicową możesz zamontować bezpośrednio na podłodze niezależnie czy masz płytki czy inną wodoodporną powierzchnię lub na brodziku z odlewanego marmuru.
Tarcza przeciw osadom
Szkło chronimy opatentowaną technologią Ravak AntiCalc®. Działa ona przeciw osadzaniu się kamienia wodnego, co sprawia, że utrzymanie czystości będzie jeszcze łatwiejsze.
Gwarancja 5 lat.
- JakośćDbałość o każdy detal oraz rygorystyczne testy jakościowe już od ponad 35 lat Ravak zapewnia klientom najwyższą jakość oraz najlepsze rozwiązania dostępne na rynku. Wszystko to robi w trosce o Twój spokój i zadowolenie z produktu na lata.
- Komfort i funkcjonalnośćRozwiązania stosowane w produktach Ravak tworzone są z myślą o Twoim komforcie i łatwości użytkowania. Ravak oferuje szeroki asortyment produktowy, który odpowiada na indywidualne potrzeby różnych użytkowników. Bazuje na opiniach klientów i dąży do doskonałości, by spełniać nawet najbardziej rygorystyczne wymagania.
- O producencieRAVAK to ponad 35 lat doświadczenia na rynku w poszukiwaniu innowacyjnych rozwiązań bez żadnych kompromisów.
Od początku istnienia RAVAK jest synonimem najwyższej jakości i niezawodności, a produkty Ravak postrzegane są jako wyznaczniki najlepszych standardów.
- Roll - Pewność przy każdym otwarciuRolki z zabudowanymi łożyskami zapewniają stabilną i płynną pracę systemu otwierania. Dzięki twałej konstrukcji nie ma ryzyka nieprzyjemnego zaskoczenia zacinaniem się drzwi a kabina będzie niezawodnie służyć przez wiele lat.
- Lekkość designu, komfort użytkowania kabina RollSubtelna, bezramowa konstrukcja optycznie powiększa całą przestrzeń. Praktyczny przesuwny system oszczędza miejsce i zapewnia komfort użytkowania nawet w mniejszych łazienkach. Płynna praca wytrzymałego szkła o grubości 8 mm i precyzyjnie wykończone detale gwarantują komfort użytkowania przez długi czas.
Zalety technologii Ravak:
-
Łatwe czyszczenie
Rozwiązania dla łatwego utrzymania czystości
-
AntiCalc
Trwała powłoka dla łatwego utrzymania czystości i zabezpieczenia przed osadami z kamienia
-
Różne rozmiary
Zawsze dopasowane rozwiązania
-
Komfort i funkcjonalność
Zoptymalizuj swoją łazienkową rutynę dzięki produktom odpowiadającym na Twoje potrzeby
-
Wariant uniwersalny
Zamontujesz w wariancie prawym i lewym





