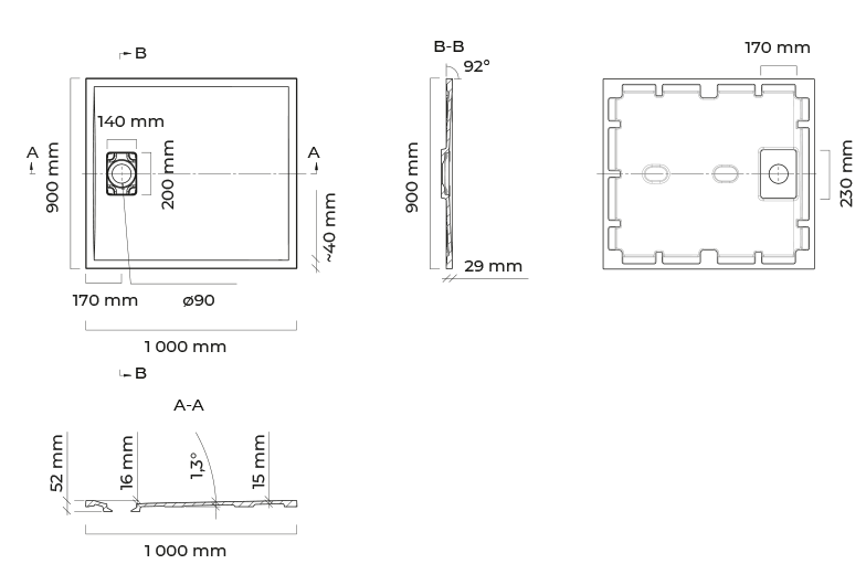
Brodzik posiada estetyczną osłonę odpływu wykonaną z tego samego
materiału, co brodzik. Tekstura na powierzchni brodzika o właściwościach
antypoślizgowych.
Możliwość przycinania brodzika pod niestandardowe wymiary (we własnym
zakresie).
- brodzik prostokątny
- instrukcja montażu brodzika
Ideą Oltens jest możliwość prostego i szybkiego stworzenia łazienki, w której będziesz czuł się dobrze. Każda seria produktów może być gotowym konceptem – można znaleźć w niej wszystko, co jest potrzebne, od wanny po mydelniczkę.
Inspirowana skandynawską harmonią, spokojem miłością do natury oraz industrialnym stylem.
Oltens to pewność i zaufanie przez cały okres użytkowania.
Z tego powodu firma OLTENS wykorzystuje technologie, które pozwolą zmniejszyć zużycie wody i energii, a tym samym zadbać o środowisko jednocześnie oszczędzając pieniądze.







