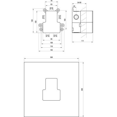
- wymiar: regulowana głębokość montażu 55-65 mm
- zastosowanie: do dwudrożnych baterii podtynkowych serii Espirit ES 065.00.O2.RB07E i Eleganta EL 065.00.O2.RB07E
- sposób montażu: na płycie gipsowo-kartonowej lub w klasycznej ścianie murowanej
R-box to uniwersalny system instalacyjny do dwudrożnych baterii podtynkowych, który jest zabudowany w ścianie. Dolna część baterii zintegrowana z R-boxem jest wykonana z wysokiej jakości mosiądzu, podobnie jak górna część baterii. W przeciwieństwie do klasycznych baterii podtynkowych, montaż w R-boxie jest znacznie prostszy, tak jak ewentualna wymiana górnej części widocznej. Zewnętrzna część dwudrożnej baterii podtynkowej serii Espirit lub Eleganta jest montowana dopiero po całkowitym zakończeniu łazienki, dzięki czemu masz pewność, że bateria nie zostanie uszkodzona przed ostatecznym zakończeniem prac budowlanych.
R-box zawiera materiał do mocowania do ściany, nie zawiera przyłączy do doprowadzenia wody ani innego materiału instalacyjnego. R-box zawiera roboczy plastikowy element osłonowy wewnętrznego korpusu baterii umieszczonego w R-boxie, który nawet po demontażu górnej części baterii utrzymuje pełną funkcjonalność rozprowadzenia wody w łazience. Dzięki temu plastikowemu elementowi można odpowietrzyć instalację bez wyłączania wody.
Gwarancja 10 lat.





