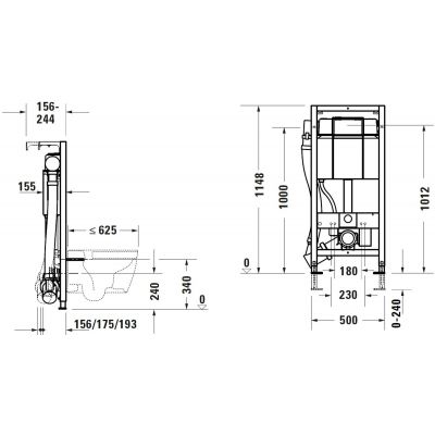
- wysokość: 114,8 cm
- głębokość: 15,5 cm
- zintegrowane spłukiwanie higieniczne
- samonośny
- do zabudowy suchej z płyt kartonowo-gipsowych
- rama malowana proszkowo
- do misek WC o głębokości <= 62,5 cm
- regulowane nóżki 0-24 cm
- przygotowane przyłącza do desek SensoWash
- elektroniczne uruchamianie z przodu
- linia środkowa oraz znacznik środka
- beznarzędziowy montaż przezroczystej płytki serwisowej
- usuwanie zapachu ze zintegrowanym wentylatorem
- wentylator zwalniany elektronicznie poprzez wykrywanie osób lub ręcznie przez płytkę uruchamiającą
- maksymalna objętość spłukiwania 9l
- technologia podwójnego spłukiwania
- regulowana objętość spłukiwania
- w komplecie zestaw do montażu wstępnego wraz z zasilaniem 100-240 V AC / 24 V DC, PE-moun kolanko przyłączeniowe toalety ted DN90 / 90, zestaw przyłączeniowy toalety PE naścienny DN90, zestaw do montażu ściennego toalety M12, akcesoria montażowe, redukcja wc WC na ścianie PE 90/110 zagięcie, 2 zaślepki, wstępnie zamontowana rama toalety do toalety





